ST PAUL'S BAY - HIGHLY FINISHED & UNIQUE SEMI-DETACHED THREE-BEDROOM APARTMENT ENJOYING SEA VIEWS - FOR SALE
Overview
- JST59787
- Apartment
- St Paul's Bay
- 2
- 3
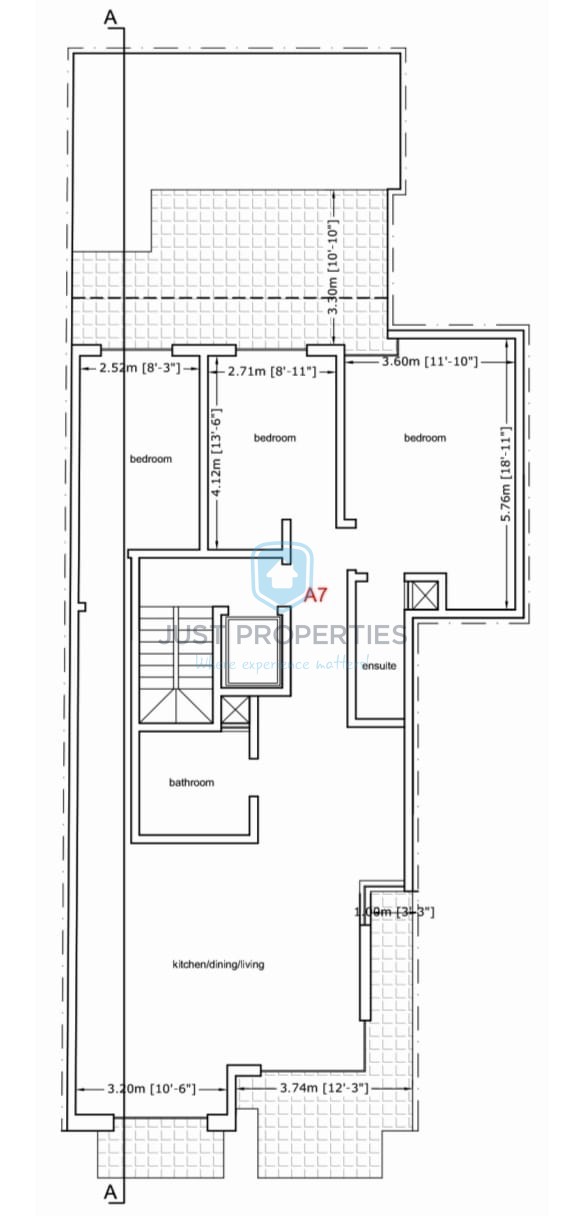
ST PAUL’S BAY – This brand new three-bedroom apartment served with lift and enjoying sea views is situated in a sought after area of this seaside village. This property consists of a spacious open plan kitchen, living, and dining area, also having a close by main bathroom and leading to two terraces enjoying sea views. A corridor to the left of the open plan leads to a secluded bedroom which has access to a large back terrace. To the right of the open plan one then finds access to the two other double bedrooms, with the main having an en-suite. Both of these bedrooms have access to the spacious back terrace also enjoying views. This property will be sold finished excluding internal doors and bathrooms and measures a total of 149sqm. Optional one-car garages are available. For further information kindly call Ruth on 99898216 or Nathan on 99257189.
Property Status
- Highly Finished
Features
- Air-Condition
- Airspace
- Back Garden
- Backyard
- Balconies
- Box Room
- City Centre
- Common Gardens
- Communal Pool
- Cooker
- Country Side
- Country Views
- Courtyard
- Dishwasher
- Dryer
- En-suite
- Fans
- Fire Place
- Flat Let
- Front Patio
- Games Room
- Garden
- Gymnasium
- Heaters
- Hob/Oven
- Inland
- Inland with Views
- Internal Yard
- Lift
- Luxury Finish
- Microwave
- Near Airport
- Near amenities
- Near Beach
- Near Bus Stop
- Near Church
- Near Schools
- Near Seafront
- Near Shops
- Part ownership of Roof
- PV Panels
- Quiet Road
- Roof
- Roof Terrace
- Sea Views
- Seafront
- Space for Pool
- Space for Swimming Pool
- Splash Pool
- Study
- Swimming Pool
- Terrace
- TV
- Use of Indoor Pool
- Use of Roof
- Valley views
- Village Views
- Walk-in wardrobe
- Washing Machine
- Washroom
- Water
- Well
- Yard
Parking Availability
- Car Port
- Car Space Included
- Garage included in the price
- Interconnected Garage
- Optional Car Space
- Optional Garage
- Space for Garage
- Street Level Garage
