ATTARD - Semi Finished bright corner three bedroom maisonette - For Sale
Overview
- JST51909
- Maisonette
- Attard
- 2
- 3
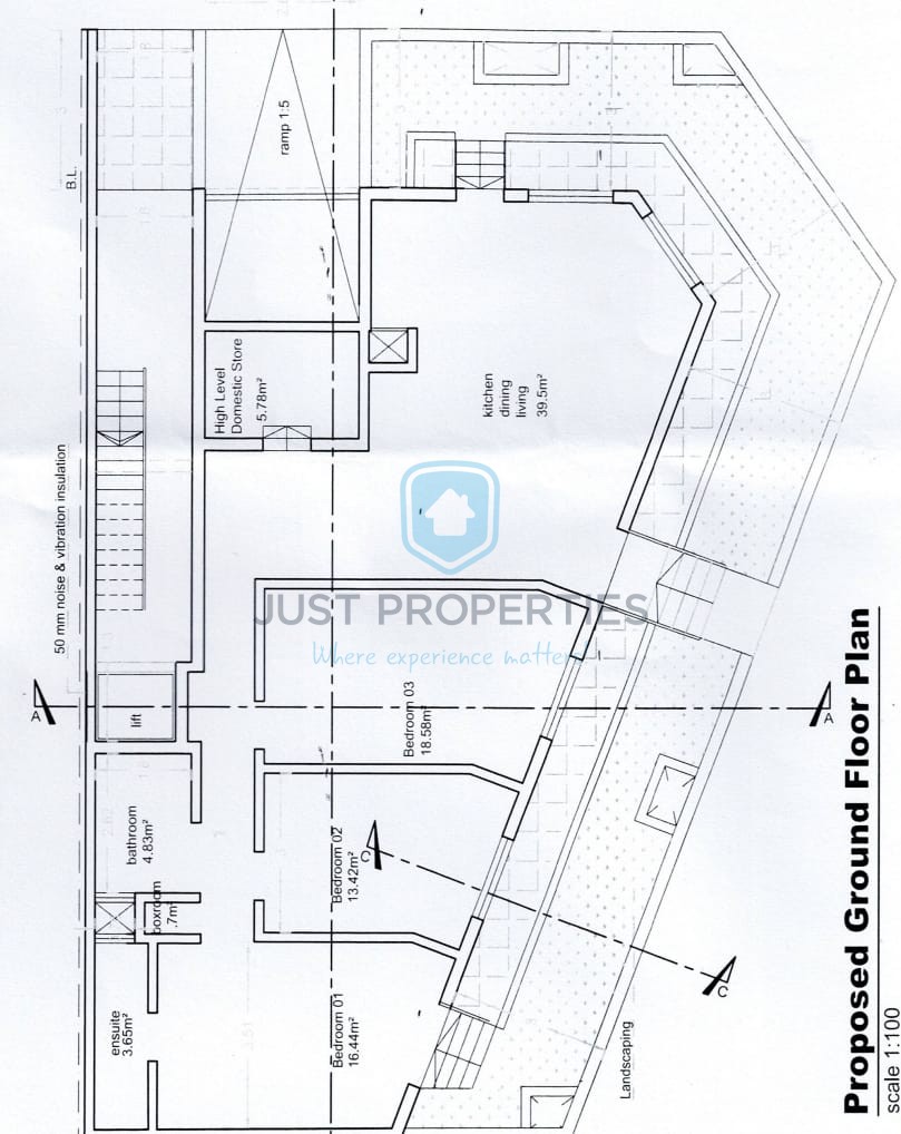
ATTARD- Located in this sought after and central area is this corner maisonette, Layout consists of an open plan Kitchen, living, Dining area with surrounding and super-sized front terrace and garden area. Following from here is a storage room and main bathroom. Then one finds three bedroom main with En-suite. Premises enjoys plenty of natural light and is being sold finished excluding bathrooms and internal doors. Optional garages also available. Freehold
Property Status
- Semi Finished
Features
- Air-Condition
- Airspace
- Back Garden
- Backyard
- Balconies
- Box Room
- City Centre
- Common Gardens
- Communal Pool
- Cooker
- Country Side
- Country Views
- Courtyard
- Dishwasher
- Dryer
- En-suite
- Fans
- Fire Place
- Flat Let
- Front Patio
- Games Room
- Garden
- Gymnasium
- Heaters
- Hob/Oven
- Inland
- Inland with Views
- Internal Yard
- Lift
- Luxury Finish
- Microwave
- Near Airport
- Near amenities
- Near Beach
- Near Bus Stop
- Near Church
- Near Schools
- Near Seafront
- Near Shops
- Part ownership of Roof
- PV Panels
- Quiet Road
- Roof
- Roof Terrace
- Sea Views
- Seafront
- Space for Pool
- Space for Swimming Pool
- Splash Pool
- Study
- Swimming Pool
- Terrace
- TV
- Use of Indoor Pool
- Use of Roof
- Valley views
- Village Views
- Walk-in wardrobe
- Washing Machine
- Washroom
- Water
- Well
- Yard
Parking Availability
- Car Port
- Car Space Included
- Garage included in the price
- Interconnected Garage
- Optional Car Space
- Optional Garage
- Space for Garage
- Street Level Garage
